Einfamilienhaus | 18.04

Übersicht Einfamilienhäuser

Objektaufnahmen

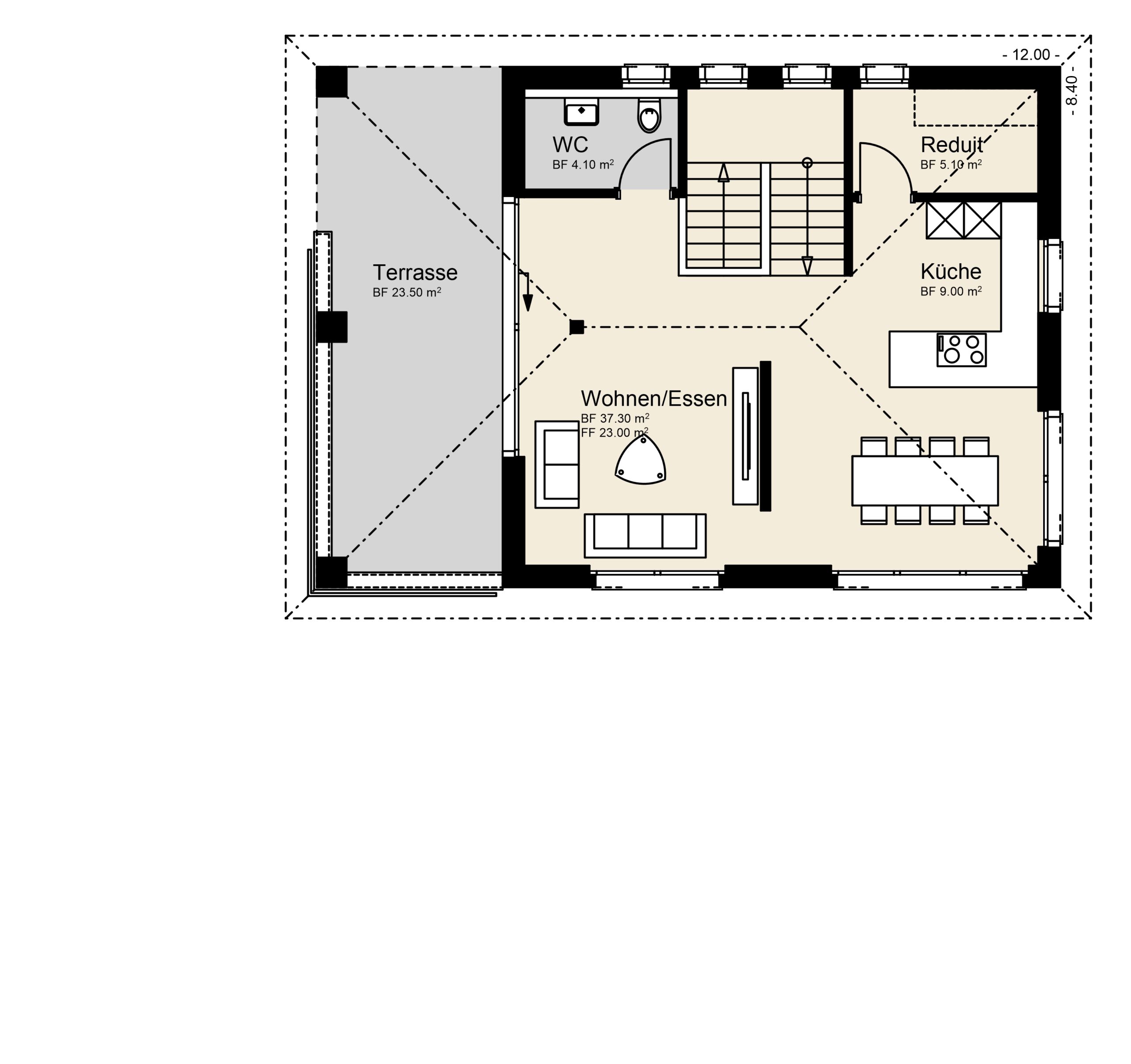
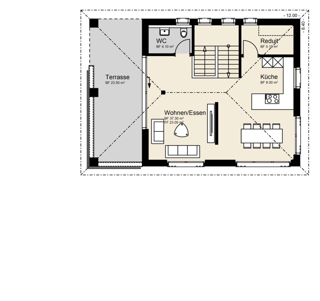
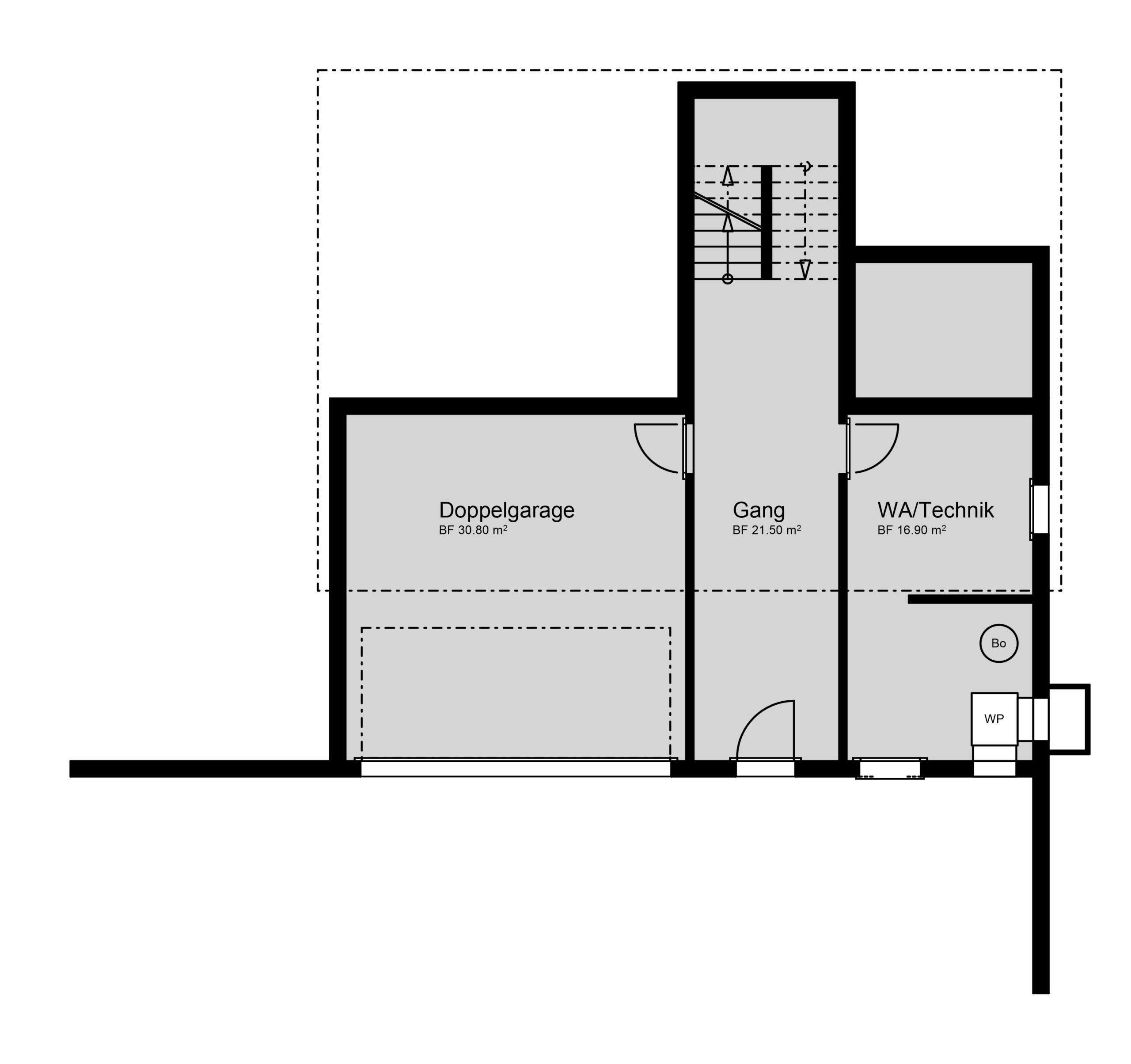
Grundrisspläne

Video zur Immobilie

Objektdetails

Haus-ID:
18.04
Baustil:
Lichtdurchflutet
Anzahl Zimmer:
5.5
Wohnfläche:
260
Baujahr:
2018

Individueller Ausbau

  • Alarmanlage
  • Beschattung
  • Cheminée
  • Einbaumöbel
  • Entkalkungsanlage
  • Fenster
  • Garage / Carport
  • Heizung
  • Individuelle Fassade
  • Individuelle Wandbeläge
  • Klimaanlage
  • Schutzraum
  • Sicherheit / Alarmanlage
  • Sitzplatz
  • Solaranlage
  • Terrasse
  • Wäscheabwurf

Ähnliche Objekte